Funderplan stumpf
Funderplan 3-Feld-Platte - belastbar und wirtschaftlich für den modernen Wohnbau
Klassifizierung:
Holzfaserplatte nach EN 316 Prüfnorm: EN 622 Technische Klasse: HB.HLA2 (Hoch belastbare Platte für tragende Zwecke zur Verwendung im Feuchtbereich) Nutzungsklasse 2 nach EN 1995-1-1, Gebrauchsklasse 2 nach EN 335
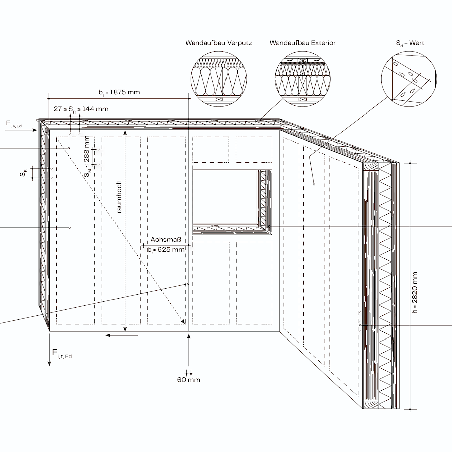
Funderplan ist statisch wirksam und wird zur aussteifenden raumseitigen Beplankung im Holzriegelbau verwendet. Dabei sind die Biegeund Querzugfestigkeit fast doppelt so hoch wie
bei Vergleichsprodukten. Die großen Formate, mit denen gleich drei Riegelfelder überspannt werden, begünstigen eine kosten- und zeitsparende werkseitige Produktion und Montage.
Die Bearbeitung wie Sägen, Bohren, Fräsen etc. erfolgt dabei wie gewohnt mit den handelsüblichen Werkzeugen.
| Format in cm | ||||
|---|---|---|---|---|
| Dicke in mm | 264x187 | 282x187,5 | 300x187,5 | 564x187,5 |
| 8 | ||||
Lieferzeit nach Absprache
Lagerware









